SYSTÈME DE RÉFRIGÉRATEUR MONOBLOC RIVACOLD FAL016Z002D - 16 m3
Disponibili in magazzino
3 010,65 €
Système monobloc RIVACOLD pour chambres froides de 16 mètres cubes.
Description
Description:
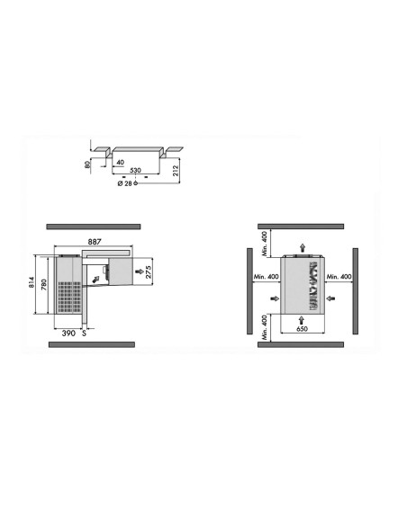
Dimensions 650x814x887 mm, gaz réfrigérant R404a, cylindrée du compresseur 53,2 cm³, alimentation 400W 50h (version ACAVALLATO).
Système de réfrigération monobloc pour chambres froides d'une taille maximale de 16 mètres cubes avec une température de -20 degrés.
Particulièrement adapté aux installations sur petites cellules.
Disponible en différents modèles en fonction des caractéristiques du produit.
Détails du produit
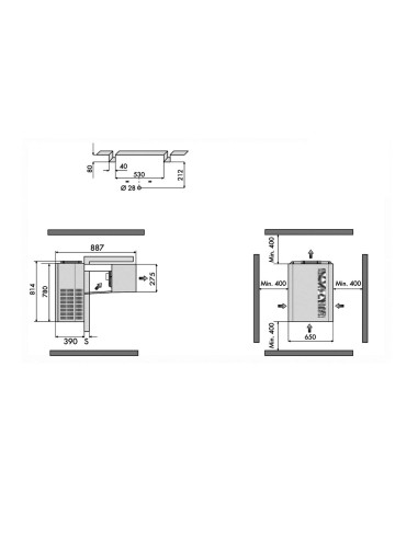
- Dimensions
- 671x975x828mm
- Gaz
- R290
- Température
- Basse température
- Déplacement
- 22,4 cm³
- Régime
- 230/1/50
RV-FAL016Z002D
100 Produits





