SISTEMA FRIGORÍFICO MONOBLOQUE RIVACOLD FAL012Z001D - 11 m3
Disponibili in magazzino
2.456,46 €
Sistema monobloque RIVACOLD para cámaras frigoríficas de 11 metros cúbicos.
Descripción
Descripción:
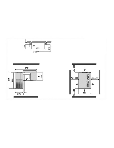
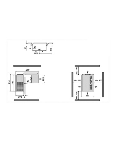
Dimensiones 650x814x887 mm, gas refrigerante R404a, cilindrada del compresor 34,37 cm³, alimentación 220-240W 50h (versión ACAVALLATO).
Sistema de refrigeración monobloque para cámaras frigoríficas de un tamaño máximo de 11 metros cúbicos con una temperatura de -20 grados.
Doble posibilidad de montaje: versión superpuesta (gama FA) o versión con plato montado (gama FT).
Disponible en diferentes modelos según las características del producto.
Detalles del producto
- Dimensiones
- 671x975x828mm
- Gas
- R290
- Temperatura
- Baja temperatura
- Desplazamiento
- 22,4 cm³
- Dieta
- 230/1/50
RV-FAL012Z001D
100 Artículos





