SISTEMA DE NEVERA MONOBLOQUE RIVACOLD FAH006Z001D - 6 m3
Disponibili in magazzino
1.817,89 €
Sistema monobloc RIVACOLD para cámaras frigoríficas de 6 metros cúbicos.
Descripción
Descripción:
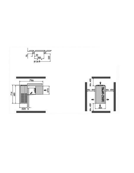
Dimensiones 400x714x796 mm, gas refrigerante R404a, cilindrada del compresor 8,78 cm³, alimentación 220-240W 50h (versión ACAVALLATO).
Sistema de refrigeración monobloque para cámaras frigoríficas de un tamaño máximo de 6 metros cúbicos con una temperatura de 2 grados.
Especialmente indicado para instalaciones en celdas pequeñas.
Disponible en diferentes modelos según las características del producto.
Detalles del producto
- Dimensiones
- 671x975x828mm
- Gas
- R290
- Temperatura
- Alta temperatura
- Desplazamiento
- 22,4 cm³
- Dieta
- 230/1/50
RV-FAH006Z001D
100 Artículos





