RIVACOLD FAM006G001D MONOBLOCK-KÜHLSYSTEM - 6 m3
Disponibili in magazzino
2.149,02 €
RIVACOLD Monoblock-System für 6 m3 Kühlräume.
Beschreibung
Beschreibung:
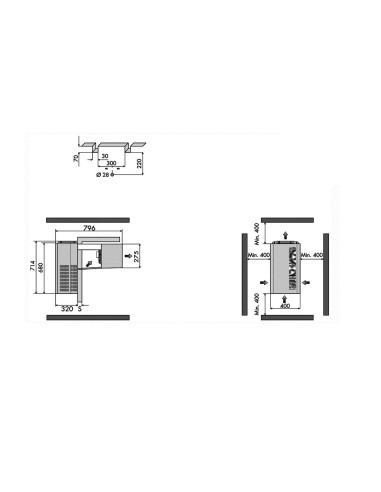
Abmessungen 400x796x714 mm, Kältemittelgas R452A, Kompressorhubraum 12,12 cm³, Stromversorgung 220-240W 50H (Vers. überlagert).
Monoblock-Kühlsystem für Kühlräume mit einer maximalen Größe von 6 Kubikmetern und einer Temperatur von null Grad.
Das Sortiment an luftgekühlten R452A FA/FT-Monoblöcken bietet eine langfristig ökologisch nachhaltige Lösung mit den Qualitäts- und Sicherheitsstandards der Rivacold-Produkte.
Kontaktieren Sie unsere Techniker, um Ihr kostenloses Angebot für unser breites Sortiment an RIVACOLD-Monoblocksystemen zu erhalten.
Artikeldetails
- Maße
- 671x975x828 mm
- Gas
- R290
- Temperatur
- Normale Temperatur
- Verschiebung
- 27,8 cm³
- Diät
- 230/1/50
RV-FAM006G001D
100 Artikel





