RIVACOLD FAM007Z001D MONOBLOCK-KÜHLSCHRANKSYSTEM – 8 m3
Disponibili in magazzino
1.974,49 €
RIVACOLD Monoblock-System für 8 Kubikmeter Kühlräume.
Beschreibung
Beschreibung:
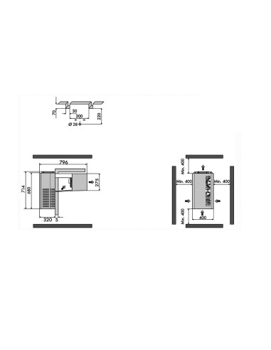
Abmessungen 400x714x796 mm, Kältemittelgas R404a, Kompressorhubraum 14,28 cm³, Stromversorgung 220-240W 50h (ACAVALLATO-Version).
Monoblock-Kühlsystem für Kühlräume mit einer maximalen Größe von 8 Kubikmetern und einer Temperatur von 0 Grad.
Besonders geeignet für Installationen auf kleinen Zellen.
Online-Verkauf von Monoblöcken der Marke RIVACOLD, vertrieben von Polargross.
Artikeldetails
- Maße
- 671x975x828 mm
- Gas
- R290
- Temperatur
- Normale Temperatur
- Verschiebung
- 22,4 cm³
- Diät
- 230/1/50
RV-FAM007Z001D
100 Artikel





