RIVACOLD BEWS302MA50P11 MONOBLOCK-KÜHLSYSTEM – 32 m3
Disponibili in magazzino
4.360,69 €
RIVACOLD überlappendes Monoblocksystem für 32 m3 Kühlräume.
Beschreibung
Beschreibung:
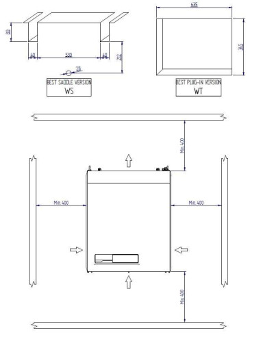
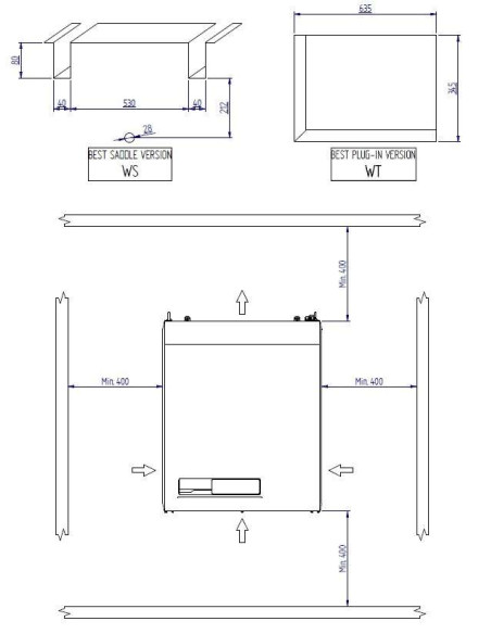
Abmessungen 671x975x828 mm, Kältemittelgas R290, Kompressorverdrängung 2x16,8 cm³, Stromversorgung 230W 50H (ACAVALLATO-Version).
Monoblock-Kühlsystem für Kühlräume mit einer maximalen Größe von 32 Kubikmetern und einer Temperatur von 0 Grad.
Bluetooth-Konnektivität.
Kontaktieren Sie unsere Techniker, um Ihr kostenloses Angebot für unser breites Sortiment an RIVACOLD-Monoblocksystemen zu erhalten.
Artikeldetails
- Maße
- 671x975x828 mm
- Gas
- R290
- Temperatur
- Hohe Temperatur
Normale Temperatur - Verschiebung
- 2x16,8 cm³
- Diät
- 230/1/50
RV-BEWS302MA50P11
100 Artikel





